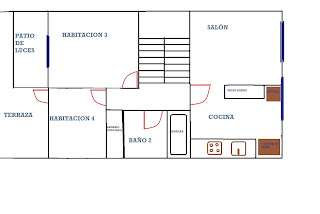
Aquí estoy de nuevo a ver si me ayudáis a decidir o si se os ocurre otra forma de poner las habitaciones, este es el plano así mas o menos y a ojo que he hecho de la casa. la imagen de arriba es la planta de arriba y la de abajo la planta de abajo. Abajo tengo dos habitaciones muy grandes las dos una de ella con dos ventanas a la calle (habitación uno) y la otra con una ventana al patio de luces y 4 armarios empotrados (habitación dos) y un baño con bañera. En la planta de arriba tenemos una habitación que entran justo dos camas con mesilla y poco más con ventana al patio de luces, una habitación pequeña como de paso a la terraza y con un armario empotrado, no tiene ventanas. Otro baño con bañera y la cocina-salón.
A ver hay varias opciones con sus pros y sus contras. La habitación 1 podría ser el cuarto de los niños, entran bien las 3 camas, la cómoda y el cambiador, vamos es grande, igual hasta puedo meter un armario. La habitación dos es grande también, podrían entrar las 3 camas de los niños igual mejor que sea interior para los niños por el ruido de la calle y el frío, pero el que tengan ahí todos esos armarios me da miedo lo que puedan hacer con ellos, tendría que ponerles cerrojos. Los niños tienen que dormir en una de estas dos porque arriba no me caben las 3 camas en la otra habitación. Entonces el dilema es si dormimos nosotros en el otro cuarto de abajo, nos sobraría mucho espacio para ser un dormitorio, igual podría poner el escritorio con el ordenador en mi cuarto, me entraría hasta un sofá, jajaja. En este caso sería para nosotros el cuarto de los armarios y para los niños el otro. Y en las habitaciones de arriba en una poner mi taller de coser y en la pequeña una salita para invitados y para que jueguen los niños.
La otra opción es poner mi taller en una de las grandes de abajo, así podría poner en una pared unas mesas para los niños para que pinten y hagan manualidades y jueguen mientras yo trabajo y así pueden andar por abajo entre este espacio y su cuarto jungando mientras coso. Para mi taller necesito una mesa grande para cortar y la mesa de las maquinas y baldas para telas y un burro para prendas terminadas, la tabla de planchar, ... así que un espacio grande me viene muy bien. Esto me da muchas dudas, como taller sería perfecto pero y si está mi marido arriba en el salón o en la cocina? los niños querrán subir a ver que hace y al rato bajar a ver que hago yo y no quiero que anden escalera arriba y abajo o tener que andar a gritos por el hueco de la escalera para hablar con mi marido. Por ese lado igual es mejor hacer la vida diurna en una sola planta y si tengo el taller arriba aunque tenga menos espacio estamos todos en la misma planta, igual puedo poner la tabla de planchar en mi cuarto, y utilizar uno o dos armarios de los empotrados de abajo para las prendas terminadas o para telas, y así descargo un poco el taller, no se, que lío!!
Así que bueno a ver cuantas ideas tenéis que os parece mejor si entre todas sacamos algo, jajaja. Otra opción es dormir yo en el cuarto de paso, creo que entraría justo la cama y ya tiene armario empotrado y en la otra hacer una salita grande de juegos y de invitados con una tele y tal. Otra cosa es que no se si me enteraré desde arriba si llora algún niño por la noche, esto no pasa mucho pero cuando está alguno malito por ejemplo si se despiertan.
Por cierto la terraza esta muy guay, es grande y con vistas, por eso el cuarto de paso para las visitas está bien así en verano salimos a tomar el café fuera y pueden jugar los niños ahí con las bicicletas y eso, pero ahí no puedo dejarlos así sin vigilancia como aquí en el patio porque una terraza siempre es peligrosa si se suben a algo para asomarse o yo que se, eso me da mucho miedo.

